skip to main
|
skip to sidebar
NIK KARDUM ARCH 11201 2010
Saturday, June 12, 2010
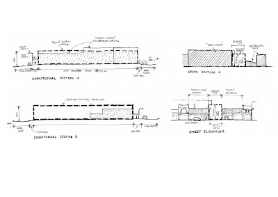
Site analysis
No comments:
Post a Comment
Newer Post
Older Post
Home
Subscribe to:
Post Comments (Atom)
Followers
Blog Archive
▼
2010
(18)
▼
June
(10)
Final model images
Final Design
Third design
Second Design
First Design
Narative, Parti, Idea.
Newtown Research
Artist Bruce Gray
Solar Diagrams
Site analysis
►
May
(1)
►
April
(7)
About Me
NIK KARDUM
View my complete profile
No comments:
Post a Comment